Barrierearmes Wohnen im Süden von Halle (Saale)
Sie möchten auch im Alter in einer unserer genossenschaftlichen Wohnung selbstbestimmt leben und wohnen? Ihre Wohnung sollte barrierearm und mit einem Aufzug für Sie erreichbar sein? Im Neukirchener Weg 1 - 11 im Süden von Halle (Saale) haben wir barrierearme und seniorengerechte Wohnungen, die genau Ihren Ansprüchen und Anforderungen entsprechen.
Sie möchten auch im Alter in einer unserer genossenschaftlichen Wohnung selbstbestimmt leben und wohnen? Ihre Wohnung sollte barrierearm und mit einem Aufzug für Sie erreichbar sein?
Im Neukirchener Weg 1 – 11 im Süden von Halle (Saale) haben wir barrierearme und seniorengerechte Wohnungen geschaffen, die genau Ihren Ansprüchen und Anforderungen entsprechen.
Unsere Wohnvorteile im gesamten Objekt
- alle Wohnungen sind durch den vorgestellten Laubengang barrierefrei erreichbar
- viele Einkaufsmöglichkeiten und eine gute ärztliche Versorgung in unmittelbarer Nachbarschaft
- sehr gute Verkehrsanbindungen mit PKW und Straßenbahn
Unsere Wohnvorteile im Neubau
- alle Wohnungen verfügen über einen Balkon
- großzügige Bäder mit ebenerdigen Duschen ausgestattet
- Fußbodenheizung sorgt für Behaglichkeit
- ein Aufzug sichert den barrierearmen Zugang

Vorhandene Leerwohnungen in den Bestandsgebäuden wurden barrierearm umgebaut
Aus 3-Raum-Wohnungen entstanden (je nach Verfügbarkeit) geräumige 2-Raum-Wohnungen mit vergrößerten Bädern und ebenerdigen Duschen.

Im Neubau entstanden 7 barrierearme Wohnungen
1x 3-Raum-Wohnung (ca. 86 m²)
6x 2-Raum-Wohnungen (ca. 63 m² – 65 m²)

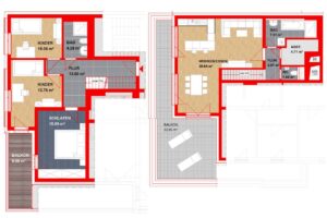
Weiterhin wurden im Neubau 2 Maisonette-Wohnungen errichtet
1x 4-Raum-Maisonette-Wohnung (ca. 130 m²)
- Bad in der 5. Etage mit Dusche
- Bad in der 6. Etage mit Wanne
1x 5-Raum-Maisonette-Wohnung (ca. 128 m²)
- Bad in der 5. Etage mit Dusche
- Bad in der 6. Etage mit Wanne

VORHER
Hier sehen Sie das Objekt vor der Neugestaltung. Mit unserer Um- und Neubaumaßnahme haben wir eine deutliche Verbesserung der Lebensqualität geschaffen.

Kontakt
Unser Team Neuvermietung hilft Ihnen gern weiter
Telefon: (0345) 53 00 - 160 E-Mail: vermietung@frohe-zukunft.de
